Verkocht:Bedrijfsweg 88A, 8304 AA Emmeloord - Foto
Verkocht
+7

Bedrijfsweg 88A 8304 AA Emmeloord

  • Bedrijfshal
  • Bouwjaar 2020
  • 485 m² perceeloppervlakte
  • 135 m² vloeroppervlakte

Beschrijving

Representatief en modern bedrijfspand aan de Bedrijfsweg 88-a in Emmeloord

Zoekt u een bedrijfspand met uitstraling, functionaliteit én een centrale ligging? Dan is dit uw kans! Gelegen op het bedrijventerrein Nagelerweg in Emmeloord, biedt dit hoogwaardige pand uit 2020 u alles wat u nodig heeft. Geen anonieme plek in een groot verzamelcomplex, maar een zelfstandige unit waar u uw onderneming optimaal kunt presenteren.

Over het pand
Dit traditioneel gebouwde 2-onder-1-kap bedrijfspand heeft een totale oppervlakte van 135 m², verdeeld over twee verdiepingen:

Begane grond: ca. 67 m²
• Bedrijfsruimte met pantry, toilet en een complete meterkast (6 groepen en krachtstroom). Geschikt voor opslag, werkplaats, etc…
• Veel daglicht dankzij diverse raampartijen.
• Voorzien van een elektrische overheaddeur (3 x 3 meter) en een aparte loopdeur.
• Hoogte van circa 3,5 meter.
• Comfortabele vloerverwarming, aangestuurd door een elektrische CV-ketel.
• Vaste trap naar de bovenverdieping.

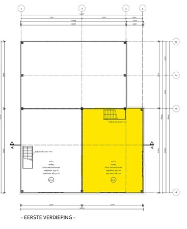
Eerste verdieping: ca. 68 m²
• Een ruime, open en lichte ruimte dankzij diverse raampartijen.
• Plafondhoogte van circa 2,8 meter.
• Een betonnen vloer, geschikt voor o.a. kantoorruimte.

Kadaster
Het totale perceel Bedrijfsweg 88 a en b betreft 485 m2 eigen grond, bij gedeeltelijke verkoop dient dit kadastraal gesplitst te worden. Er is een erfdienstbaarheid van overweg aanwezig.

Koopsom:
Vraagprijs € 169.500,- k.k. excl. BTW
Aanvaarding: overleg

Optioneel: Extra ruimte kopen of huren?
Wilt u meer ruimte? Het naastgelegen pand aan de Bedrijfsweg 88-b is ook beschikbaar. Dit biedt een totale oppervlakte van ca. 235 m², verdeeld over twee verdiepingen. De begane grond (ca. 167 m²) bedrijfshal met entresol en sanitair. De verdieping (ca. 68 m²) is ingericht als kantoorruimte met kantine.

Waarom kiezen voor dit pand?
Dit bedrijfspand combineert modern comfort, representativiteit en een praktische indeling, ideaal voor ondernemers die waarde hechten aan een professionele uitstraling.

Grijp deze kans en geef uw onderneming de ruimte die het verdient!

Kaart

Kenmerken

Overdracht

Referentienummer
05851
Vraagprijs
€ 169.500,- k.k.
Status
Verkocht
Aanvaarding
In overleg
Aangeboden sinds
Maandag 12 mei 2025
Laatste wijziging
Maandag 27 oktober 2025

Bouw

Type object
Bedrijfshal
Soort bouw
Bestaande bouw
Bouwperiode
2020

Oppervlaktes en inhoud

Perceeloppervlakte
485 m²
VVO
135 m²
In units vanaf
135 m²

Uitrusting

Uitrusting
Betonvloer
Overheaddeuren

Kadastrale gegevens

Kadastrale aanduiding
Noordoostpolder AZ 12383
Perceeloppervlakte
485 m²
Omvang
Geheel perceel
Eigendomsituatie
Eigen grond

Media

Foto's

Plattegronden