Verkocht onder voorbehoud:Ganzenroer 3A, 8309 DA Tollebeek - Foto
Verkocht onder voorbehoud
+60

Ganzenroer 3A 8309 DA Tollebeek € 495.000,- k.k.

  • Woonhuis
  • 7 kamers
  • 6 slaapkamers
  • 2 badkamers
  • Bouwjaar 2012
  • 270 m² perceeloppervlakte
  • 182 m² gebruiksoppervlakte
  • A+ Energielabel A+

Beschrijving

Ganzenroer 3a – Tollebeek
Richtprijs: € 495.000 k.k.

Hier wil je wonen!
Op een prachtige locatie in het gezellige Tollebeek staat deze royale, instapklare twee-onder-één-kapwoning met maar liefst 6 slaapkamers, een luxe leefkeuken, slaap- en badkamer op de begane grond en een zonnige, recent aangelegde tuin mét overkapping en berging. Deze moderne woning uit 2012 is met zorg onderhouden en voorzien van alle comfort om direct te betrekken.

De woning staat op een perceel van 270 m² eigen grond en biedt u niet alleen veel ruimte, maar ook een levensloopbestendig woonconcept dankzij de in 2018 aangebouwde slaapkamer en badkamer op de begane grond. Met energielabel A, 14 zonnepanelen en luxe afwerking is dit een woning waar u jarenlang met
plezier kunt wonen.

Pluspunten van deze woning:
• Levensloopbestendig: slaapkamer en badkamer op de begane grond (rolstoelvriendelijk)
• Royale uitbouw aan de achterzijde met prachtige leefkeuken
• Luxe keuken (2022) voorzien van o.a. Quooker kraan, inductiekookplaat, combi-oven, koel-vriescombinatie en vaatwasser
• 6 volwaardige slaapkamers
• 14 zonnepanelen (okt 2021, 400 WP per stuk)
• Recent aangelegde tuin (2025) met stijlvolle overkapping en berging
• Elektrisch bedienbare (met afstandsbediening) voordeur en deur naar slaap- en woonkamer
• Energielabel A+

Indeling
Begane grond
Entree/hal, kantoor- praktijk-, slaap-, of speelkamer met schuifdeur naar aangepaste badkamer met o.a. design radiator, wastafel, verlengd toilet, douche (aanwezig een elektrische douchebrancard). Separaat toilet met fontein, meterkast en trapopgang.
Straatgerichte, lichte L-vormige woonkamer met uitzicht over groenvoorziening; royale uitgebouwde leefkeuken met openslaande deuren naar de tuin (uitvalscherm aanwezig). De luxe keuken (2022) beschikt over hoogwaardige inbouwapparatuur en volop bergruimte. Aansluitend bevindt zich de bijkeuken met witgoedaansluitingen, veel opbergmogelijkheden en toegang tot de tuin.
De fraai aangelegde achtertuin op het zuidoosten biedt een sfeervolle overkapping met berging (afmeting 6,05 x 3,37 meter), sierbestrating, bordes, zonwering en volop privacy. Aan de voorzijde vindt u een verzorgde tuin met oprit voor de auto.

Eerste verdieping
Overloop met veel daglicht, ruime badkamer met ligbad, inloopdouche, toilet, design radiator en wastafel en badmeubel. Verder een riante ouderslaapkamer met kleedruimte en twee ruime slaapkamers.

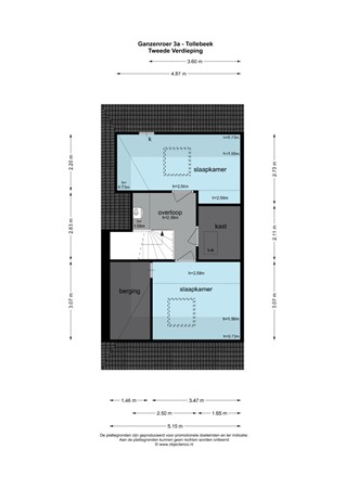
Tweede verdieping
Vaste trap naar voorzolder met CV-ketel (Intergas, 2012), omvormer en praktische riante inloopkast met toegang tot kleine bergzolder. Twee slaapkamers met dakramen en volop bergruimte o.a. achter de knieschotten.

Kenmerken
• Perceel: 270 m² eigen grond
• Bouwjaar: 2012
• Woonoppervlakte: 182 m²
• Externe bergruimte: 8 m²
• Inhoud: 660,58 m³
• Energielabel: A+
• Slaap- en badkamer op de begane grond
• 6 slaapkamers
• Voorzien van zonnepanelen en luxe afwerking

Locatie
Tollebeek is een vriendelijk en groen dorp, gunstig gelegen tussen Emmeloord en Urk. Het dorp biedt een rijk verenigingsleven, twee basisscholen, supermarkt, snackbar, Chinees afhaalrestaurant en een gezellig eetcafé/restaurant. Ook de natuur en het uitgestrekte polderlandschap liggen binnen handbereik. Vanuit de woning loopt u zo naar diverse wandelpaden om bijvoorbeeld uw hond uit te laten.

Kortom: een heerlijk, modern en duurzaam woonhuis met enorm veel ruimte en comfort. Een woning die u écht gezien moet hebben!
Bent u benieuwd of dit uw nieuwe thuis kan worden? Neem vandaag nog contact op voor meer informatie of een bezichtiging.

Kaart

Kenmerken

Overdracht

Referentienummer
05876
Vraagprijs
€ 495.000,- k.k.
Status
Verkocht onder voorbehoud
Aanvaarding
In overleg
Aangeboden sinds
Dinsdag 9 september 2025
Laatste wijziging
Woensdag 15 oktober 2025

Bouw

Type object
Woonhuis, eengezinswoning, twee onder een kap woning
Soort bouw
Bestaande bouw
Toegankelijkheid
Mindervaliden
Bouwperiode
2012
Keurmerken
Aangepaste woning

Oppervlaktes en inhoud

Perceeloppervlakte
270 m²
Woonoppervlakte
182 m²
Inhoud
661 m³
Oppervlakte externe bergruimte
8 m²

Indeling

Aantal bouwlagen
3
Aantal kamers
7 (waarvan 6 slaapkamers)
Aantal badkamers
2 (en 1 apart toilet)

Tuin

Type
Achtertuin

Energieverbruik

Energielabel
A+

Uitrusting

Badkamervoorzieningen Badkamer 1
Douche
Toilet
Wastafel
Badkamervoorzieningen Badkamer 2
Inloopdouche
Ligbad
Toilet
Wastafelmeubel
Tuin aanwezig
Ja

Kadastrale gegevens

Kadastrale aanduiding
Noordoostpolder EX 850
Perceeloppervlakte
270 m²
Omvang
Geheel perceel
Eigendomsituatie
Eigen grond

Brochure(s) en overige bijlagen

Ganzenroer 3-A, 8309 DA TOLLEBEEK (1) Download