Verkocht onder voorbehoud:Zuidermiddenweg 17-1, 8309 RG Tollebeek - Foto
Verkocht onder voorbehoud
+73

Zuidermiddenweg 17-1 8309 RG Tollebeek € 1.250.000,- k.k.

  • Woonhuis
  • 8 kamers
  • 6 slaapkamers
  • 1 badkamers
  • Bouwjaar 1955
  • 6.420 m² perceeloppervlakte
  • 446 m² gebruiksoppervlakte
  • A Energielabel A

Beschrijving

Unieke woonboerderij met talloze mogelijkheden voor ondernemers en paardenliefhebbers

Droom je van een perfecte balans tussen landelijk wonen en ondernemen? Dan is deze prachtige woonboerderij aan de Zuidermiddenweg 17-I in Tollebeek de ideale kans. Dit unieke object biedt alles wat ondernemers en paardenliefhebbers zich kunnen wensen. Gelegen op een perceel van 6.420 m² eigen grond, volledig gasloos en met energielabel A. Bovendien beschikt de boerderij over twee volledig zelfstandige appartementen, wat het perfect maakt voor een bed & breakfast of een groot gezin. De mogelijkheden zijn eindeloos! Deze woonboerderij ligt helemaal vrij en heeft een fantastisch vrij uitzicht over de landerijen.

Belangrijkste kenmerken

Rustige en centrale locatie
Deze woonboerderij ligt in het landelijke buitengebied van Tollebeek, met het bruisende Urk en Emmeloord op korte afstand. Hierdoor geniet je van zowel de rust van het platteland als de nabijheid van stadse voorzieningen.

Paardenliefhebbers opgelet
Bij deze woonboerderij bestaat een unieke mogelijkheid voor het houden van paarden. De huidige eigenaren huren circa 1 tot 1,5 hectare aangrenzend weiland van de naastgelegen agrariër, welke zij gebruiken als paardenweide. Deze grond behoort niet tot het verkochte perceel, maar kan – in overleg met de betreffende boer – opnieuw worden gehuurd door de nieuwe eigenaar.

Dankzij deze regeling is het object bij uitstek geschikt voor liefhebbers van buitenleven en paarden, met volop ruimte en vrijheid in een landelijke omgeving. De combinatie van wonen en het houden van paarden op korte afstand maakt dit een bijzonder aantrekkelijk geheel.

Uitstekende paardenfaciliteiten
Voor paardenliefhebbers is dit een droomlocatie. De boerderij beschikt over een professioneel aangelegde paardenbak van 45 x 27 meter, een overdekte stapmolen en meerdere paddocks. Daarnaast zijn er diverse bijgebouwen met paardenstallen, een zadelkamer en een wasplaats met warm water, waardoor je paarden optimaal worden gehuisvest en verzorgd.

Comfortabel en modern wonen
De woonboerderij is gemoderniseerd en voorzien van alle gemakken. De ruime woonkamer met prachtig vrij uitzicht, een luxe leefkeuken en goed geïsoleerde gevels (van buitenaf geïsoleerd met stucwerk) en dak (compleet voorzien van geïsoleerde dakplaten) zorgen voor een aangename woonervaring. Daarnaast is de woning gasloos en uitgerust met zonnepanelen, wat bijdraagt aan een energiezuinig en duurzaam leefklimaat.

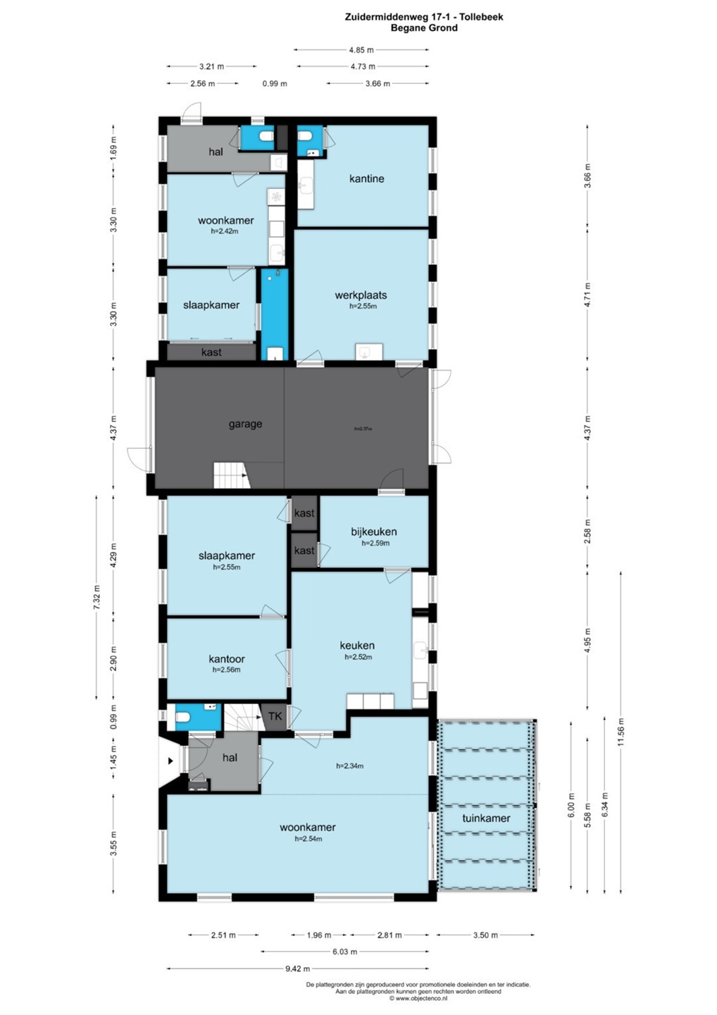
Indeling woonhuis
• Begane grond: Entree/ hal met vernieuwde meterkast, toilet, trapopgang, royale woonkamer met airco en schuifpui naar de tuinkamer. De tuinkamer (afmeting 3.50 x 6 meter) is voorzien van elektrisch zonnescherm en verlichting. Daarnaast zijn er een kantoorruimte en een extra slaapkamer, die ook als badkamer of speelkamer kan dienen. De luxe leefkeuken (2018) beschikt over een Quooker, vaatwasser, BORA-inductiekookplaat met afzuiging, stoomoven, combimagnetron, koelkast en natuurstenen werkblad. Vanuit de bijkeuken (opstelling wasmachine en bergkast) is er toegang tot de originele deel welke is ingericht als garage (toegankelijk middels elektrische overheaddeur) en bergruimte. Daarnaast is er een ruime werkplaats. Aan de achterzijde met eigen ingang een kantine met pantry en toiletruimte.

• Eerste verdieping: Overloop met airco, vier ruime slaapkamers (waarvan één met schuifkastenwand) en een badkamer met vloerverwarming, dubbele wastafel, ligbad, inloopdouche en separaat toilet.

• Tweede verdieping: Via een vlizotrap bereikbare ruime zolder.

• Appartement 1 (2024, eigen ingang, begane grond): Entree/ hal, toiletruimte, aansluiting witgoed, woonkamer met keuken (koelkast, inductiekookplaat, oven en afzuigkap), badkamer met inloopdouche en designradiator, separate slaapkamer met schuifkastenwand. Voorzien van vloerverwarming, kunststof kozijnen, eigen meterkast en een heet water boiler.

• Verdieping schuurgedeelte: Vanuit de deel een vaste trap naar riante bergruimte en technische ruimte met opstelling warmtepomp (bouwjaar 2019) en boiler (bouwjaar 2020.) Zonnecollectoren 2019 en buffervat van 400 liter

• Appartement 2 (2008, op de verdieping): Bereikbaar vanuit de voormalige deel- garage. Ruime woonkamer met open keuken (inductiekookplaat, oven, vaatwasser en koel-vriescombinatie), slaapkamer met schuifkastenwand, badkamer met inloopdouche en designradiator, apart toilet en een vaste trap naar extra slaap-/hobbykamer op de verdieping. Dit appartement beschikt over airco, kunststof kozijnen en een heet water boiler.

Paardenvoorzieningen
• Paardenstal (ca 10.x 34 meter): zadelkamer, spuit plaats met warmwater, opslag voor stro en voer, water rondpomp systeem (warm water), 9 boxen van ca. 3 x 3 meter, 1 box van ca. 6 x 3,5 meter, 1 box van ca. 7 x 3 meter, 1 box van ca. 8 x 3 meter
• Kapschuur (ca. 9 x 15 meter): Geschikt voor opslag van machines en voer, plus een groepshok.
• Carport 5x10 meter
• Professionele paardenbak (45 x 27 meter): Aangelegd door Klaas Meijer Bodems, voorzien van bakverlichting en drainage.
• Paddock (ca 16 x 27meter): Royale buitenruimte voor de paarden.
• Overdekte stapmolen: Doorsnede van 14 meter, voorzien van verlichting en drie vakken.
• Twee extra buitenboxen, afmeting 2.50 x 6 meter.

Erfinrichting
• Riant terras met tuinkamer en supersize parasol 5x5 m.
• Buitenverlichting
• Elektrisch toegangshek
• Voorweide met afrastering voor paarden

Bijzonderheden
• Inhoud: 1583,84 m³
• Woonoppervlakte: 445,50 m²
• Overige inpandige ruimte(n): 26,50 m²
• Gebouwgebonden buitenruimte(n): 21,00 m²
• Externe bergruimte: 525 m2
• Perceeloppervlakte: 6.420 m²
• Bestemming: Wonen
• Origineel bouwjaar: 1955
• Glasvezel aanwezig
• Volledig gasloos
• Vloerverwarming in keuken en bijkeuken
• Elektrische rolluiken
• Woonhuis ramen voorzien van Unilux rolhorren
• Geïsoleerde gevels en dak
• 43 zonnepanelen op de woning, bouwjaar 2013, 250 Wp per stuk
• 24 zonnepanelen op de schuur, bouwjaar 2021, 320 Wp per stuk

Mis deze unieke kans niet en plan vandaag nog een bezichtiging. Deze woonboerderij biedt een prachtige combinatie van wonen, ondernemen en genieten van paarden in een landelijke omgeving!

Kaart

Kenmerken

Overdracht

Referentienummer
05810
Vraagprijs
€ 1.250.000,- k.k.
Status
Verkocht onder voorbehoud
Aanvaarding
In overleg
Aangeboden sinds
Donderdag 8 mei 2025
Laatste wijziging
Dinsdag 20 januari 2026

Bouw

Type object
Woonhuis, woonboerderij, vrijstaande woning
Soort bouw
Bestaande bouw
Bouwperiode
1955
Isolatievormen
Dakisolatie
Muurisolatie

Oppervlaktes en inhoud

Perceeloppervlakte
6.420 m²
Woonoppervlakte
445,5 m²
Inhoud
1.584 m³
Oppervlakte overige inpandige ruimten
26,5 m²
Oppervlakte externe bergruimte
525 m²
Oppervlakte gebouwgebonden buitenruimte
21 m²

Indeling

Aantal bouwlagen
3
Aantal kamers
8 (waarvan 6 slaapkamers)
Aantal badkamers
1 (en 1 apart toilet)

Tuin

Type
Achtertuin

Energieverbruik

Energielabel
A

Uitrusting

Keukenvoorzieningen
Inbouwapparatuur
Badkamervoorzieningen
Dubbele wastafel
Inloopdouche
Ligbad
Toilet
Vloerverwarming
Heeft airco
Ja
Tuin aanwezig
Ja
Heeft een garage
Ja
Heeft rolluiken
Ja
Heeft een schuifpui
Ja
Heeft zonnepanelen
Ja

Kadastrale gegevens

Kadastrale aanduiding
Noordoostpolder E 1329
Perceeloppervlakte
6.420 m²
Eigendomsituatie
Eigen grond

Brochure(s) en overige bijlagen

Zuidermiddenweg 17-1, 8309 RG TOLLEBEEK (1) Download