Verhuurd:Havenstraat 22-26, 8304 AH Emmeloord - Foto
Verhuurd
+8

Havenstraat 22-26 8304 AH Emmeloord

  • Bedrijfshal
  • Bouwjaar 2022
  • 254 m² vloeroppervlakte

Beschrijving

Op het bedrijventerrein Nagelerweg in Emmeloord staan aan de Havenstraat 26 moderne bedrijfsunits. Wij bieden een hoekunit te huur aan, gunstig gelegen aan de straatzijde, met optimale zichtbaarheid vanaf de weg. Deze recent opgeleverde unit is splinternieuw en nog nooit eerder in gebruik geweest. De unit heeft een totale oppervlakte van ca. 254 m², verdeeld over twee verdiepingen van elk ca. 127 m². De bovenverdieping is voorzien van extra ramen, wat zorgt voor meer daglicht, ideaal voor bijvoorbeeld kantoorruimtes, spreekkamers of een showroom.

De unit beschikt over een eigen toegang via een elektrische overheaddeur en een aparte loopdeur. Het buitenterrein is bestraat en er zijn vier eigen parkeerplaatsen beschikbaar.

Bereikbaarheid
Het bedrijventerrein is gunstig gelegen op korte afstand van de snelwegen A6 en N50, en tevens dicht bij het centrum van Emmeloord.

Afmetingen
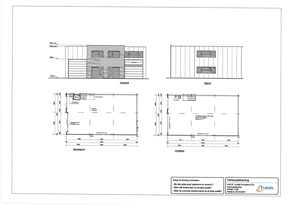
De unit is in totaal ca. 254 m2; ca. 127 m² groot op zowel de begane grond als de eerste verdieping. De vrije hoogte op de begane grond, tot de onderkant van de airco-unit, is ca. 2,91 meter. De overheaddeur heeft een breedte van ca. 4 meter en een hoogte van ca. 3 meter.

Voorzieningen
• 4 eigen parkeerplaatsen
• Eigen entree
• Geïsoleerde begane grondvloer, gevels en dak
• 3 x 25 Ampère elektra aansluiting
• Wastafel met boiler en toiletruimte op de begane grond
• Pantry met boiler op de verdieping
• 6 airco-units voor zowel koeling als verwarming (3 op de begane grond, 3 op de verdieping)
• Centraal afzuigsysteem
• Elektrisch bedienbare overheaddeur met afstandsbediening
• Volledig betonnen verdiepingsvloer
• Extra raamkozijnen op beide verdiepingen voor extra daglicht
• Aparte loopdeur
• LED-verlichting en systeemplafond op de verdieping
• Brandblusser
• Strak gestuct plafond en wandafwerking
• Krachtstroomaansluiting
• Glasvezelaansluiting

Huurprijs
€ 1.450,00 per maand exclusief btw (afhankelijk van contractduur), water en elektra.

Oplevering
Direct beschikbaar, oplevering in lege staat.

Voorbehoud
Verhuur is onder voorbehoud van goedkeuring door de eigenaar. Het object wordt alleen verhuurd aan BTW-plichtige ondernemers.

Huurcontract
De huurovereenkomst wordt opgesteld volgens het model van de Raad voor Onroerende Zaken (ROZ), vastgesteld in januari 2015.

Huurprijsindexering
Jaarlijks op basis van de consumentenprijsindex (CPI) reeks "Alle huishoudens" (2006 = 100), gepubliceerd door het CBS. De eerste indexering vindt plaats één jaar na de ingangsdatum van de huur.

Zekerheidstelling
Een bankgarantie of waarborgsom ter hoogte van drie maanden huur.

Inlichtingen
Voor meer informatie of het maken van een bezichtigingsafspraak kunt u contact opnemen met:
Sloterwijk & Heinen Bedrijfsmakelaars
Ecu 2, 8305 BA Emmeloord
Telefoon: 0527-610260
E-mail: info@shmakelaars.nl
Website: www.shmakelaars.nl

Kaart

Kenmerken

Overdracht

Referentienummer
05786
Huurprijs
€ 1.450,- per maand
Status
Verhuurd
Aanvaarding
Direct
Aangeboden sinds
Donderdag 3 oktober 2024
Laatste wijziging
Dinsdag 20 mei 2025

Bouw

Type object
Bedrijfshal
Soort bouw
Bestaande bouw
Bouwperiode
2022

Oppervlaktes en inhoud

VVO
254 m²
In units vanaf
254 m²
Vrije hoogte
3 m.

Kadastrale gegevens

Kadastrale aanduiding
Noordoostpolder AZ 13433
Eigendomsituatie
Eigen grond

Media

Foto's

Plattegronden

Brochure(s) en overige bijlagen

Havenstraat 22-26, 8304 AH EMMELOORD (1) Download
Havenstraat 22-26, 8304 AH EMMELOORD (2) Download