Onder optie:Traktieweg 18, 8304 BA Emmeloord - Foto
Onder optie
+86

Traktieweg 18 8304 BA Emmeloord € 120.000,- /jr

  • Bedrijfshal
  • Bouwjaar 1997
  • 6.595 m² perceeloppervlakte
  • 2.205 m² vloeroppervlakte

Beschrijving

Te huur: Representatief en multifunctioneel bedrijfspand op toplocatie!
Vrijblijvende aanbieding

Algemeen
Op een absolute zichtlocatie bieden wij dit representatieve, vrijstaande multifunctionele bedrijfspand te huur aan. Het object combineert functionaliteit met uitstraling en is uitermate geschikt voor bedrijven die waarde hechten aan professionele presentatie, uitstekende bereikbaarheid én ruimte in alle opzichten.
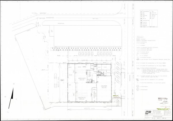
Het pand heeft een oppervlakte van circa 2.205 m² en bestaat uit een mix van:
• Kantoorruimte
• Bedrijfshal
• Showroom
• Werkplaats
• Magazijn
• Ruim buitenterrein

Gelegen op een riant perceel van maar liefst 6.595 m², is dit een uitstekende kans voor bedrijven met ambities en groeipotentie.

Uniek voordeel: het perceel beschikt over een dubbele ontsluiting – aan zowel de Traktieweg als de Ondernemersweg. Dit biedt optimale logistieke flexibiliteit voor o.a. goederenstromen, bezoekers- en vrachtverkeer.

Uitstekende bereikbaarheid
De locatie biedt directe aansluiting op de A6, met snelle routes naar o.a. Joure, Groningen, Leeuwarden, Almere en Amsterdam. Ook de N50/A50 richting Emmeloord, Kampen en Apeldoorn is uitstekend bereikbaar. Ideaal voor zowel regionaal als nationaal opererende bedrijven.

Oppervlakte-indeling
Begane grond
• Kantoorruimte: ca. 220 m²
• Bedrijfshal: ca. 925 m²
• Magazijn: ca. 125 m²
• Showroom/bedrijfshal: ca. 410 m²
• Spuitcabine: ca. 75 m²

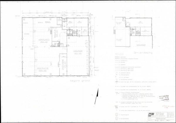
Verdieping
• Kantoren: ca. 175 m²
• Magazijn: ca. 200 m²
• Bergruimte boven spuitcabine: ca. 75 m²

Indeling
Entree met tochtportaal, ontvangstruimte met balie, toiletgroepen, meerdere kantoorruimten, archiefruimte, wasruimte, werkplaats met magazijnruimte, spuitcabine en opslag voor verf en oliën. De showroom aan de voorzijde biedt uitstekende mogelijkheden voor productpresentatie of klantontvangst.
Op de verdieping bevinden zich o.a. een kantine met pantry, kantoortuin, vergaderruimte en magazijnruimte.

Voorzieningen
• Verwarming via radiatoren (2x CV) in de kantoren en hetelucht in de hal
• LED-verlichting en systeemplafonds
• Lichtstraten voor natuurlijke lichtinval
• Bovenloopkraan 3,2 ton + voorbereiding tweede kraan
• 2x Elektrische overheaddeur (ca. 4,5 x 4,5 m)
• Draagkracht vloer: 4.500 kg/m²
• 3 x 80A elektra-aansluiting
• Diverse sanitaire voorzieningen
• Spuit plaats
• Geheel omheind terrein met schuifpoorten
• Uitgebreide parkeergelegenheid en laad-/loszones
• Buitenopslag en uitbreidingsmogelijkheden

Buitenterrein
• Geheel verhard met betonklinkers
• Ruime manoeuvreerruimte voor vrachtverkeer
• Voldoende parkeergelegenheid
• Dubbele ontsluiting
• Diverse hekwerken en toegangspoorten

Bestemming
Bestemmingsplan: Bedrijventerrein -2
Geschikt voor uiteenlopende bedrijfsactiviteiten.

Huurcondities
• Huurprijs: € 120.000,- per jaar excl. btw
• Huurtermijn: In overleg
• Modelovereenkomst: ROZ-model kantoorruimte/artikel 7:230a BW
• Betaling: Per maand of kwartaal vooruit
• Huurgarantie: 3 maanden huur
• Indexering: Jaarlijks o.b.v. CBS-index (CPI)
• BTW-belaste verhuur vereist (90% regel)

Aanpassingen buitenzijde
In overleg met de verhuurder kan de buitenkant gerestyled worden.

Oplevering
In overleg

Voorbehoud
Definitieve verhuur onder voorbehoud goedkeuring eigenaar/verhuurder.

Reclamevoering
Uitsluitend na goedkeuring en benodigde vergunningen.

Benieuwd naar de mogelijkheden?
Neem vandaag nog contact met ons op voor meer informatie of een vrijblijvende bezichtiging. Dit pand moet je gezien hebben!

Kaart

Kenmerken

Overdracht

Referentienummer
05859
Huurprijs
€ 120.000,- per jaar
Status
Onder optie
Aanvaarding
In overleg
Aangeboden sinds
Dinsdag 10 juni 2025
Laatste wijziging
Vrijdag 1 augustus 2025

Bouw

Type object
Bedrijfshal
Soort bouw
Bestaande bouw
Bouwperiode
1997

Oppervlaktes en inhoud

Perceeloppervlakte
6.595 m²
VVO
1.810 m²
In units vanaf
1.810 m²
Kantoor oppervlakte
395 m²
Totale verhuurbare vloeroppervlakte
2.205 m²

Uitrusting

Uitrusting
Betonvloer
Krachtstroom
Overheaddeuren
Heeft een kantoor
Ja

Kadastrale gegevens

Kadastrale aanduiding
Noordoostpolder AZ 8914
Perceeloppervlakte
6.595 m²
Omvang
Geheel perceel
Eigendomsituatie
Eigen grond

Brochure(s) en overige bijlagen

Traktieweg 18, 8304 BA EMMELOORD (1) Download
Traktieweg 18, 8304 BA EMMELOORD (2) Download