Verhuurd:de Bun 6-06, 8311 AB Espel - Foto
Verhuurd
+10

de Bun 6-06 8311 AB Espel

  • Bedrijfshal
  • Bouwjaar 2023
  • 2.106 m² perceeloppervlakte
  • 52 m² vloeroppervlakte

Beschrijving

Te huur: de Bun 6-06 te Espel

Ondernemers, zzp-ers en particulieren opgelet; de mogelijkheden zijn eindeloos: als opslag- en werkruimte, bedrijfsvoorraad of stalling van boot, camper, auto, vouwwagen of caravan. Op het bedrijventerrein van Espel bieden wij deze multifunctionele bedrijfsunit te huur aan.

De unit heeft een eigen toegang door middel van een handmatige overheaddeur (ca. 3,5 x 4,2 meter) en een aparte loopdeur. Het buitenterrein is bestraat met klinkers.

Bereikbaarheid
Het bedrijventerrein heeft een strategische ligging op korte afstand van Emmeloord, Urk en Lemmer en de snelweg A6.

Afmetingen
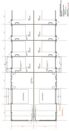
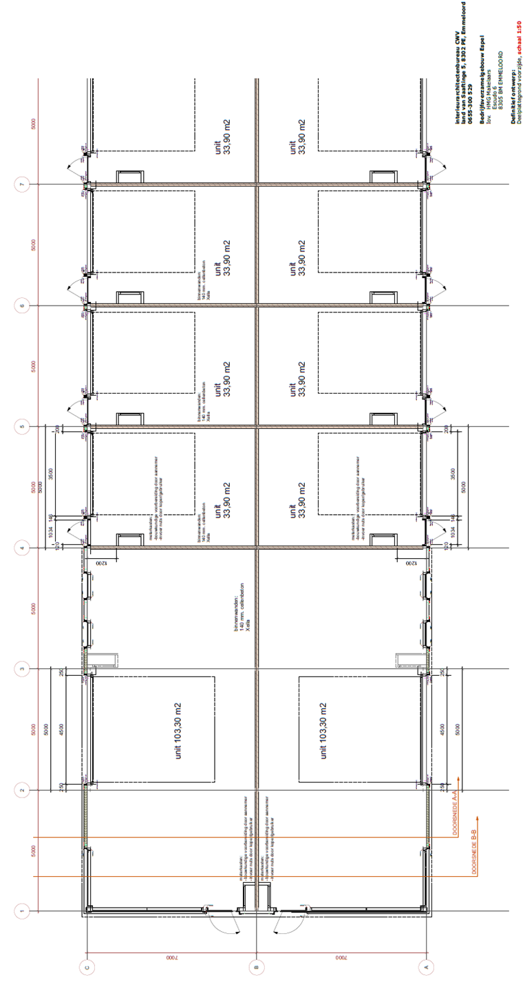
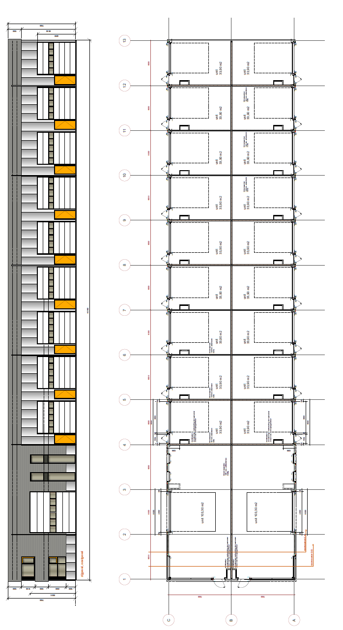
Het betreft hier een unit van ca. 35 m² BVO (afmeting ca. 7 x 5 meter) begane grond en ca. 17 m² verdieping (hout), vrije hoogte ca. 6,50 meter, hoogte tot aan verdieping ca. 3,40 meter, doorrijhoogte ca 4.1 meter.

Voorzieningen
- Meterkast (stroom- en watermeter);
- Internetaansluiting;
- Krachtstroomaansluiting aanwezig;
- Afvoer aanwezig voor een toilet;
- Led armaturen.

Huurprijs:
€ 465,00 per maand, exclusief btw (exclusief water en elektra).

Oplevering
In overleg

Voorbehoud
Goedkeuring eigenaar.

Huurcontract
De model huurovereenkomst kantoorruimte en andere bedrijfsruimte wordt opgesteld volgens het model door de Raad voor Onroerende Zaken in januari 2015 vastgesteld.

Huurprijsindexering
Jaarlijks op basis van de wijziging van het maandprijsindexcijfer volgens de consumentenprijsindex (CPI) reeks “Alle huishoudens” (2006 = 100), gepubliceerd door het Centraal Bureau voor de Statistiek (CBS), voor het eerst 1 jaar na huuringangsdatum en vervolgens jaarlijks op deze datum.

Zekerheidstelling
De bankgarantie/waarborgsom dient gelijk te zijn aan 2 maand huur.

Kaart

Kenmerken

Overdracht

Referentienummer
05946
Huurprijs
€ 465,- per maand
Status
Verhuurd
Aanvaarding
In overleg
Aangeboden sinds
Donderdag 16 april 2026
Laatste wijziging
Donderdag 30 april 2026

Bouw

Type object
Bedrijfshal
Soort bouw
Bestaande bouw
Bouwperiode
2023

Oppervlaktes en inhoud

Perceeloppervlakte
2.106 m²
VVO
52 m²
Vrije hoogte
6,5 m.

Locatie

Ligging
Bedrijventerrein

Kadastrale gegevens

Kadastrale aanduiding
Noordoostpolder EZ 747
Perceeloppervlakte
2.106 m²
Omvang
Deel perceel
Eigendomsituatie
Eigen grond

Media

Foto's

Plattegronden

Brochure(s) en overige bijlagen

De Bun 6-06, 8311 AB ESPEL (2) Download