Nieuw in verhuur:Waterpas 2-15, 8316 GJ Marknesse - Foto
Nieuw in verhuur
+6

Waterpas 2-15 8316 GJ Marknesse € 475,- /mnd

  • Bedrijfshal
  • Bouwjaar 2022
  • 52 m² perceeloppervlakte
  • 52 m² vloeroppervlakte

Beschrijving

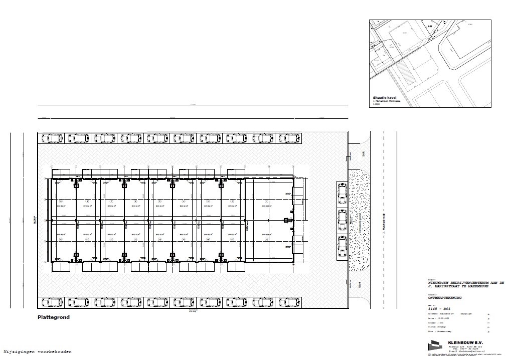
Te huur: bedrijfsunit aan de Waterpas 2-15 te Marknesse.

Op het nieuwste bedrijventerrein van Marknesse bieden wij deze bedrijfsunit te huur aan. De unit heeft een oppervlakte van circa 52 m².

De unit heeft een eigen toegang door middel van een elektrische overheaddeur (ca. 3,5 x 4,0 meter) en een aparte loopdeur. Het buitenterrein is bestraat met klinkers en voor de unit liggen 2 stelconplaten. Geheel is voorzien van een hekwerk met 2 toegangsschuifpoorten.

Bereikbaarheid
Het bedrijventerrein heeft een strategische ligging op korte afstand van Emmeloord, Steenwijk en Meppel. Ook qua vaarverbinding heeft Marknesse een zeer gunstige ligging tussen het IJsselmeerlaan, het Zwarte Water en De Wieden/ Weerribben.

Afmetingen
Het betreft hier een unit van ca. 52 m² (afmeting ca. 9,45 x 5,50 meter).

Voorzieningen
- Meterkast (stroom- en watermeter);
- Krachtstroomaansluiting aanwezig;
- Afvoer aanwezig voor een toilet;
- 9-Led armaturen.

Huurprijs
€ 475,00 per maand, exclusief BTW (exclusief water en elektra)

Oplevering
In overleg

Voorbehoud
Goedkeuring eigenaar.

Huurcontract
De model huurovereenkomst kantoorruimte en andere bedrijfsruimte wordt opgesteld volgens het model door de Raad voor Onroerende Zaken in januari 2015 vastgesteld.

Huurprijsindexering
Jaarlijks, op basis van de wijziging van het maandprijsindexcijfer volgens de consumentenprijsindex (CPI) reeks “Alle huishoudens” (2006 = 100), gepubliceerd door het Centraal Bureau voor de Statistiek (CBS), voor het eerst 1 jaar na huuringangsdatum en vervolgens jaarlijks op deze datum.

Zekerheidstelling
De bankgarantie/waarborgsom dient gelijk te zijn aan 2 maanden huur.

Aan deze presentatie kunnen geen rechten worden ontleend.
Toelichtingsclausule NEN2580. De Meetinstructie is gebaseerd op de NEN2580. De Meetinstructie is bedoeld om een meer eenduidige manier van meten toe te passen voor het geven van een indicatie van de gebruiksoppervlakte. De Meetinstructie sluit verschillen in meetuitkomsten niet volledig uit, door bijvoorbeeld interpretatieverschillen, afrondingen of beperkingen bij het uitvoeren van de meting.

Kaart

Kenmerken

Overdracht

Referentienummer
05912
Huurprijs
€ 475,- per maand
Status
Nieuw in verhuur
Aanvaarding
In overleg
Aangeboden sinds
Maandag 15 december 2025

Bouw

Type object
Bedrijfshal
Soort bouw
Bestaande bouw
Bouwperiode
2022

Oppervlaktes en inhoud

Perceeloppervlakte
52 m²
VVO
52 m²

Uitrusting

Uitrusting
Krachtstroom
Overheaddeuren

Kadastrale gegevens

Kadastrale aanduiding
Noordoostpolder BZ 1950
Perceeloppervlakte
52 m²
Omvang
Deel perceel

Media

Foto's

Plattegronden

Brochure(s) en overige bijlagen

Waterpas 2-15, 8316 GJ MARKNESSE (1) Download