Nieuw in verhuur:Lindehof 12, 8332 VD Steenwijk - Foto
Nieuw in verhuur
+33

Lindehof 12 8332 VD Steenwijk € 130,-/m2/jr

  • Kantoor
  • Bouwjaar 2010
  • 4.320 m² perceeloppervlakte
  • 875 m² vloeroppervlakte

Beschrijving

UITSTEKENDE ZICHTLOCATIE - A32 STEENWIJK
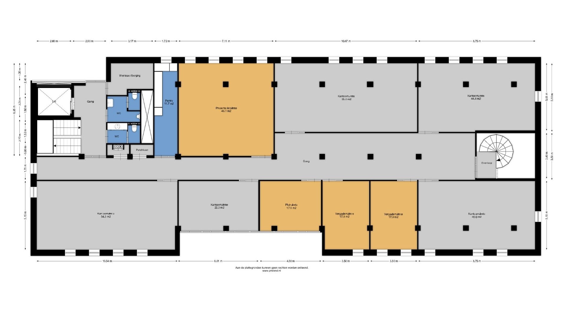
Namens onze opdrachtgever bieden wij op een zeer fraaie locatie en in een modern en luxe uitgevoerd kantorencomplex de bovenste twee etages te huur aan. Het betreft de derde verdieping ter grootte van 467 m2 en de vierde verdieping ter grootte van 424 m2. Beide etages bieden wij in z'n geheel aan. Huren van één etage is in overleg mogelijk. Op de begane grond en eerste twee etages is thans de firma Roelofs gevestigd.

OBJECTBESCHRIJVING
Het complex Lindehof 12 te Steenwijk bestrijkt in totaal 2.110 m2 verhuurbaar vloeroppervlak en kent de volgende indeling:
Hoofdentree aan de korte noordzijde van het gebouw. In de collectieve hal bevinden zich meterkasten, toiletgroep, MIVA (minder validen toilet), opslagruimte voor containers, trappenhuis en lift.

Op elke etage is uiteraard een stopplaats voor de lift en is steeds een dubbele toiletgroep, berging en pantry aanwezig.

De derde verdieping biedt naast de toiletten, berging en pantry in het kantoorgedeelte een centrale gang met ter linker en ter rechterzijde een serie kantoorruimtes en vergaderruimte. Aan het einde van de hal bevinden zich bergingen en het nood trappenhuis.

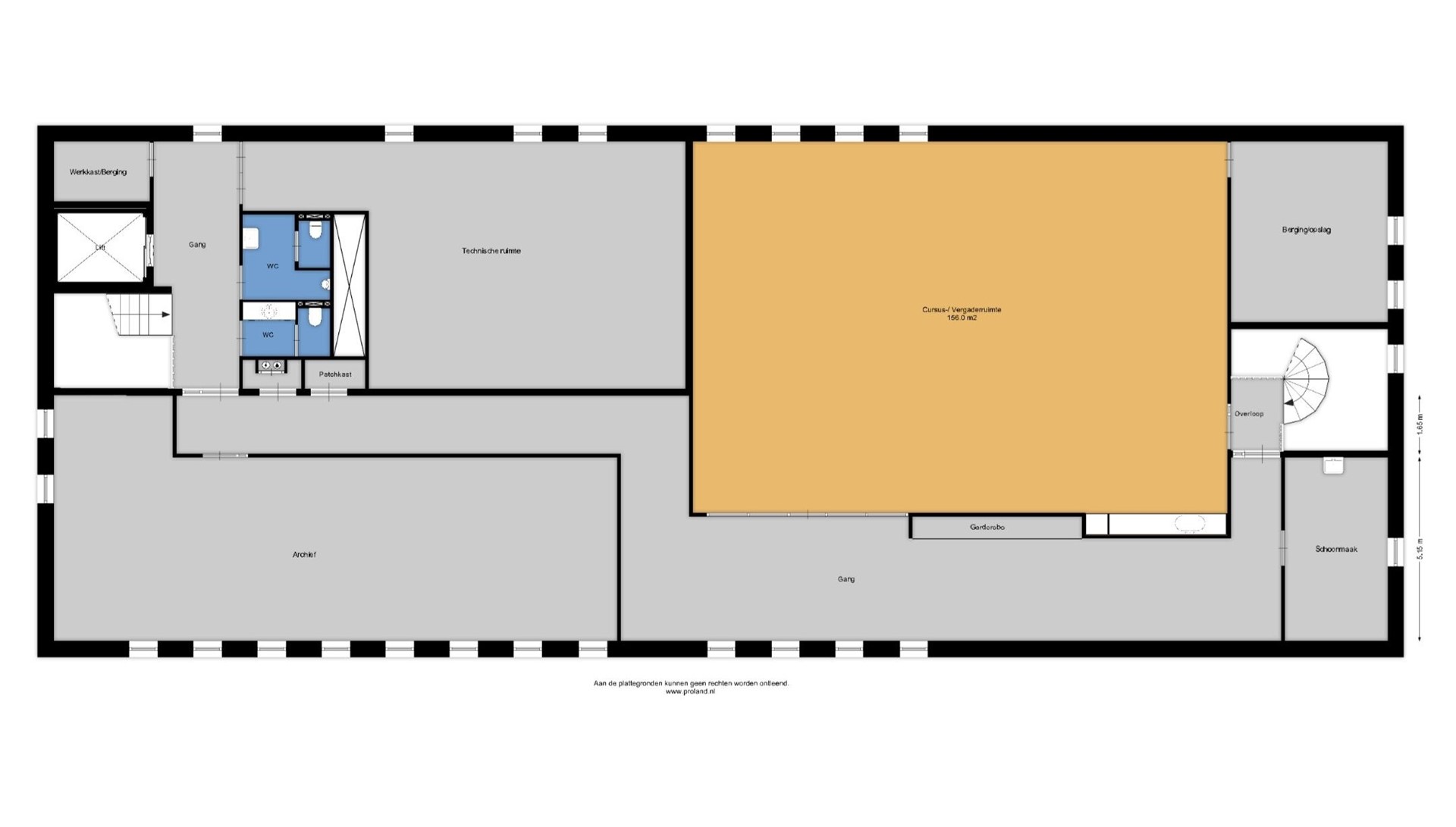
De vierde verdieping is iets anders ingedeeld. Naast dezelfde collectieve voorzieningen zoals genoemd bij de derde verdieping is een deel van deze etage ingeruimd voor alle technische zaken. Hierdoor is het verhuurbare vloeroppervlak ca. 43 m2 kleiner dan de derde verdieping. Daarnaast kent deze etage een wat andere indeling.

De centrale gang is korter, heeft aan de rechterzijde een viertal kantoren en eindigt eerder met een toegang naar de grote vergaderruimte met royale garderobe. Achter de vergaderruimte bevinden zich twee bergingen t.b.v. de opslag van o.a. tafels en stoelen waardoor de vergaderruimte in meerdere opstellingen kan worden gebruikt.
Indien er geen behoefte is aan een dergelijke grote vergaderruimte is het uiteraard ook mogelijk om dat deel als een zgn. kantoortuin in te zetten. De bergingen zijn ook om te zetten naar meer kantoorruimte.

ALGEMEEN
· Uitstekende ligging
· Zicht locatie
· Goede bereikbaarheid
· Energielabel A
· Lage verbruikslasten

HUURPRIJS EN CONDITIES
· Huurprijs € 130,00 p/m2 per jaar
· Servicekosten € 40,00 p/m2 per jaar
· Parkeerplaatsen zijn te huur voor € 300,00 per jaar
· Huurperiode minimaal 5 jaar
· Optieperiode 5 jaar
· Waarborgsom/bankgarantie ter grootte van 3 mnd huur te vermeerderen met BTW
· Contract op basis van ROZ-model Kantoor- en overige bedrijfsruimte

Alle bedragen zijn exclusief 21% BTW

BESTEMMINGSPLAN
· Eeserwold Werken - gemeente Steenwijkerland
· Vastgesteld op 25 oktober 2022
· Bestemming - Bedrijventerrein
- kantoren
- volumineuze detailhandel
- ondergeschikt: parkeren, groenvoorzieningen etc.

LIGGING/OMGEVING
Steenwijk (17.500 inwoners) is een historische stad in de provincie Overijssel. Het is bekend om zijn rijke geschiedenis, charmante grachten en goed bewaarde middeleeuwse architectuur. Hier zijn enkele zakelijke hoogtepunten:

Economie: Steenwijk heeft een diverse economie met een mix van landbouw, handel, en toerisme. De stad is een belangrijk regionaal centrum voor detailhandel en dienstverlening.
Toerisme: De stad trekt toeristen aan vanwege zijn historische binnenstad, grachten, en nabijheid tot natuurgebieden zoals de Weerribben-Wieden.
Infrastructuur: Steenwijk is goed bereikbaar via de A32 en heeft een treinstation dat verbindingen biedt naar grote steden zoals Zwolle en Leeuwarden.
Evenementen: De stad organiseert regelmatig evenementen zoals markten, festivals, en culturele activiteiten die zowel inwoners als externe bezoekers aantrekken.
Steenwijk combineert historische charme met moderne voorzieningen, wat het een aantrekkelijke locatie maakt voor zowel inwoners als bedrijven.

MEER INFORMATIE
Klik op 'Download brochure' en gebruik de link in de brochure om op de projectwebsite te komen.
Bezichtigingen via Hoekstra Bedrijfsmakelaars.
Tel. 058-2337337

Kaart

Kenmerken

Overdracht

Referentienummer
05905
Status
Nieuw in verhuur
Aanvaarding
In overleg
Aangeboden sinds
Maandag 24 november 2025

Bouw

Type object
Kantoor
Soort bouw
Bestaande bouw
Bouwperiode
2010

Oppervlaktes en inhoud

Perceeloppervlakte
4.320 m²
VVO
875 m²
In units vanaf
418 m²

Indeling

Aantal bouwlagen
2

Locatie

Bereikbaarheid
Bushalte op 500 meter tot 1000 meter
Treinstation op 2000 meter tot 3000 meter
Afrit van de snelweg op 500 meter tot 1000 meter

Kadastrale gegevens

Kadastrale aanduiding
Steenwijkerland
Perceeloppervlakte
4.320 m²

Brochure(s) en overige bijlagen

Lindehof 12, 8332 VD STEENWIJK (1) Download