Koop:Bedrijfsweg 88B, 8304 AA Emmeloord - Foto
+23

Bedrijfsweg 88B 8304 AA Emmeloord € 319.500,- k.k.

  • Bedrijfshal
  • Bouwjaar 2020
  • 303 m² vloeroppervlakte

Beschrijving

Te koop: Representatief en modern bedrijfspand aan de Bedrijfsweg 88-b in Emmeloord

Zoekt u een bedrijfspand met uitstraling, functionaliteit én een centrale ligging? Dan is dit uw kans! Dit pand is compleet klaar voor gebruik: bedrijfshal met kantoor en kantine op de verdieping. Gelegen op het bedrijventerrein Nagelerweg in Emmeloord, biedt dit hoogwaardige pand uit 2020 u alles wat u nodig heeft. Geen anonieme plek in een groot verzamelcomplex, maar een zelfstandig bedrijfspand waar u uw onderneming optimaal kunt presenteren.

Over het pand
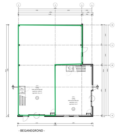
Dit traditioneel gebouwde 2-onder-1-kap bedrijfspand heeft een totale oppervlakte van ca 235 m², verdeeld over twee verdiepingen:

Begane grond: ca. 167 m²
• Bedrijfsruimte met toilet, en een complete meterkast (3x25A en krachtstroom). Geschikt voor opslag, werkplaats, etc.
• Voorzien van een elektrische overheaddeur (3 x 3 meter) en een aparte loopdeur.
• Hoogte van circa 6,30 meter en ca. 3,45 meter.
• Voorbereiding vloerverwarming.
• Vaste trap naar de bovenverdieping.
• Entresol (hout) van ca. 40 m2

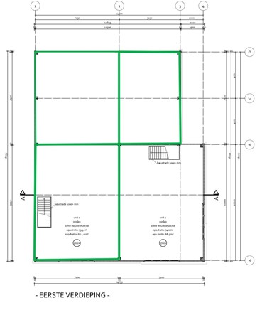
Eerste verdieping: ca. 68 m²
• Beton vloer
• Overloop
• Ruime kantine: systeemplafond met ledverlichting, airco (koelen en verwarmen) en pantry met vaatwasser, koelkast en combimagnetron.
• Kantoorruimte: diverse raampartijen (aluminium met HR++ glas), systeemplafond met ledverlichting, airco (koelen en verwarmen).

Optioneel: Extra ruimte?
Wilt u meer ruimte? Het naastgelegen pand aan de Bedrijfsweg 88-a is ook beschikbaar. Dit biedt een totale oppervlakte van ca. 135 m², verdeeld over twee verdiepingen. De begane grond (ca. 67 m²) bedrijfshal met pantry en sanitair. De verdieping (ca. 68 m²) met betonvloer, raampartijen is geschikt als kantoorruimte.

Kadaster
Het totale perceel Bedrijfsweg 88 a en b betreft 485 m2 eigen grond, bij gedeeltelijke verkoop dient dit kadastraal gesplitst te worden. Er is een erfdienstbaarheid van overweg aanwezig.

Vraagprijs
€ 319.500,-- kosten koper, exclusief BTW.

Voorbehoud
Goedkeuring eigenaar.

Waarom kiezen voor dit pand?
Dit bedrijfspand combineert modern comfort, representativiteit en een praktische indeling, ideaal voor ondernemers die waarde hechten aan een professionele uitstraling.

Meer informatie en bezichtiging
Neem contact op met Sloterwijk & Heinen Bedrijfsmakelaars:

Grijp deze kans en geef uw onderneming de ruimte die het verdient!

Kaart

Kenmerken

Overdracht

Vraagprijs
€ 319.500,- k.k.
Aanvaarding
In overleg
Aangeboden sinds
Dinsdag 8 juli 2025
Laatste wijziging
Woensdag 8 oktober 2025

Bouw

Type object
Bedrijfshal
Soort bouw
Bestaande bouw
Bouwperiode
2020

Oppervlaktes en inhoud

VVO
235 m²
In units vanaf
235 m²
Kantoor oppervlakte
68 m²
Totale verhuurbare vloeroppervlakte
303 m²
Vrije hoogte
6,3 m.

Uitrusting

Uitrusting
Betonvloer
Krachtstroom
Overheaddeuren
Toilet
Heeft een kantoor
Ja

Kadastrale gegevens

Kadastrale aanduiding
Noordoostpolder AZ 12383
Perceeloppervlakte
485 m²
Omvang
Geheel perceel
Eigendomsituatie
Eigen grond

Media

Plattegronden

Brochure(s) en overige bijlagen

Bedrijfsweg 88-B, 8304 AA EMMELOORD (1) Download