Verkocht:Havenstraat 22-13, 8304 AH Emmeloord - Foto
Verkocht
+11

Havenstraat 22-13 8304 AH Emmeloord

  • Bedrijfshal
  • Bouwjaar 2022
  • 125 m² perceeloppervlakte
  • 125 m² vloeroppervlakte

Beschrijving

Moderne bedrijfsunit te koop – Havenstraat 22-13, Emmeloord

Algemeen
Op het bedrijventerrein Nagelerweg in Emmeloord bieden wij een moderne en veelzijdige bedrijfsunit te koop aan. Deze tussenunit, gebouwd in 2022, is ideaal voor uiteenlopende doeleinden zoals het stallen van een boot of caravan, het inrichten van een werkplaats en het creëren van een kantoor- of kantineruimte op de verdieping. Het complex is gelegen op een gunstige locatie, op korte afstand van het centrum van Emmeloord.
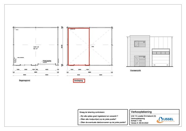
De unit heeft een totale oppervlakte van circa 125 m², verdeeld over een begane grond (circa 83 m²) en een verdiepingsvloer (circa 42 m²). Het buitenterrein is volledig bestraat en beschikt over twee eigen parkeerplaatsen. De eigentijdse uitstraling van het gebouw, gecombineerd met de praktische indeling en moderne voorzieningen, maakt deze unit een uitstekende investering.

Bereikbaarheid
De bedrijfsunit is uitstekend bereikbaar dankzij de strategische ligging nabij de A6, met snelle verbindingen richting Joure, Groningen, Leeuwarden, Almere en Amsterdam. Ook de N50/A50 richting Kampen en Apeldoorn ligt binnen handbereik. Daarnaast is het openbaar vervoer goed geregeld en bevindt het stadscentrum van Emmeloord zich op loopafstand.

Afmetingen
De unit beschikt over:
• Begane grond: circa 83 m² (9,86 x 8,43 meter)
• Verdiepingsvloer: circa 42 m² (5,0 x 8,43 meter)
• Hoogte: circa 6,40 meter
• Hoogte onder verdiepingsvloer: circa 3,12 meter
• Hoogte verdiepingsvloer tot aan plafond: circa 2,90 meter

Voorzieningen
Deze bedrijfsunit is voorzien van alle gemakken:
• Elektrische overheaddeur (4 x 4 meter)
• Aparte loopdeur
• Raampartijen op zowel de begane grond als de verdieping voor veel natuurlijk licht
• Meterkast met krachtstroom (3x 25 A) en meerdere elektrapunten
• Glasvezelkabel bij de voordeur
• Verlichting aanwezig
• Houten verdiepingsvloer
• Vaste trap naar de verdieping
• Toiletruimte op de verdieping

Kadaster
De bedrijfsunit valt onder een appartementsrecht, kadastraal bekend als gemeente Noordoostpolder, sectie AZ, complexaanduiding 13442-A, appartementsindex 13. Dit omvat:
• A. het recht op het uitsluitend gebruik van de bedrijfsunit (unit 13) met twee parkeerplaatsen op de begane grond van de onder b. te noemen gemeenschap, plaatselijk bekend Havenstraat (thans nog ongenummerd) te Emmeloord; en
• B . het vijfentachtig/duizend zeventiende (85/1017e) onverdeeld aandeel in de gemeenschap, bestaande uit het bedrijfsverzamelgebouw met parkeerplaatsen, ondergrond, erf, omliggend terrein, parkeerplaatsen en verder toebehoren, gelegen aan de Havenstraat te Emmeloord, ten tijde van de splitsing in
appartementsrechten kadastraal bekend gemeente Noordoostpolder, sectie AZ, nummer 13434, ongeveer groot tweeduizend tweehonderd zesenzeventig vierkante meter (2.276 m2).

Bijzonderheden
Bij aankoop wordt de koper automatisch lid van de Vereniging van Eigenaren (VvE) "Gebouw A Havenstraat te Emmeloord".

Servicekosten
€ 117,- per maand.

Richtprijs
€135.000,- kosten koper, exclusief BTW (BTW wordt verlegd).

Omzetbelasting
Deze unit is geschikt voor BTW-plichtige ondernemers, waarbij de BTW kan worden verlegd.

Oplevering
In overleg met de eigenaar, op korte termijn mogelijk.

Voorbehoud
Verkoop onder voorbehoud van goedkeuring door de eigenaar.

Zekerheidstelling
Bij aankoop dient een waarborgsom of bankgarantie van 10% van de koopsom te worden gesteld bij de notaris.

Grijp deze kans en neem contact met ons op voor meer informatie of een bezichtiging!

Kaart

Kenmerken

Overdracht

Referentienummer
05803
Vraagprijs
€ 135.000,- k.k.
Servicekosten
€ 117,-
Status
Verkocht
Aanvaarding
In overleg
Aangeboden sinds
Donderdag 9 januari 2025
Laatste wijziging
Dinsdag 4 maart 2025

Bouw

Type object
Bedrijfshal
Soort bouw
Bestaande bouw
Bouwperiode
2022

Oppervlaktes en inhoud

Perceeloppervlakte
125 m²
VVO
125 m²
In units vanaf
125 m²
Vrije hoogte
6,4 m.

Kadastrale gegevens

Kadastrale aanduiding
Noordoostpolder AZ 13442
Perceeloppervlakte
125 m²
Omvang
Geheel perceel
Eigendomsituatie
Eigen grond

Media

Foto's

Plattegronden

Brochure(s) en overige bijlagen

Havenstraat 22-13, 8304 AH EMMELOORD (1) Download