Verkocht:Verlengde Gildenweg 16C, 8304 BK Emmeloord - Foto
Verkocht
+9

Verlengde Gildenweg 16C 8304 BK Emmeloord

  • Bedrijfshal
  • Bouwjaar 2005
  • 55 m² perceeloppervlakte
  • 78 m² vloeroppervlakte

Beschrijving

Te koop: Bedrijfsunit aan de Verlengde Gildenweg 16-c, Emmeloord
Vrijblijvende aanbieding

Op een goed bereikbare locatie op bedrijventerrein “A6” te Emmeloord bieden wij een multifunctionele bedrijfsunit te koop aan, gelegen aan de Verlengde Gildenweg 16-c. Deze unit is uitermate geschikt voor diverse doeleinden, zoals opslag, werkplaats, showroom met kantoorfunctie of als hobbyruimte.

De bedrijfsunit beschikt over een eigen entree via zowel een loopdeur als een handmatige overheaddeur. De begane grond is ingericht als bedrijfs-/opslagruimte. Op de verdieping bevinden zich een kantoorruimte en een kantine met keukenblok.

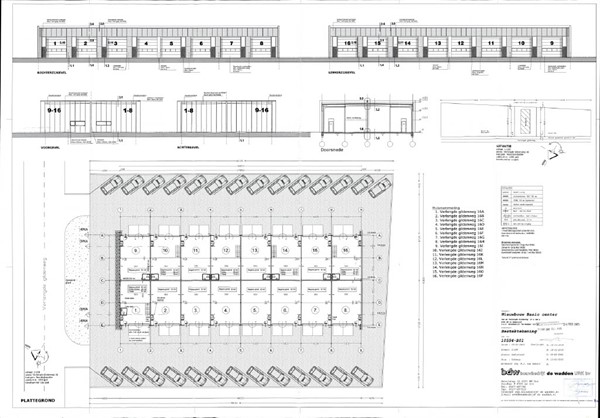
Het object maakt deel uit van het bedrijfsverzamelgebouw “Basic Center” en beschikt over een mandelig buitenterrein, volledig verhard met betonklinkers. Er zijn voldoende parkeerplaatsen en goede laad- en losmogelijkheden voor vrachtverkeer.

Locatie en bereikbaarheid
De unit is gelegen op bedrijventerrein “A6”, een representatieve en goed ontsloten locatie in Emmeloord. De bereikbaarheid is uitstekend dankzij de nabijheid van de A6 (richting Joure en Lelystad) en de N50 (richting Zwolle en Kampen).

Oppervlakte
• Begane grond: ca. 52 m² (VVO)
• Verdieping: ca. 26 m²
• Totale gebruiksoppervlakte: ca. 78 m²

Afmetingen:
• Begane grond: ca. 8,93 m x 5,85 m
• Verdieping: ca. 4,44 m x 5,85 m
• Vrije hoogte: ca. 5,39 m (onder de verdiepingsvloer: ca. 2,79 m)

Indeling
Begane grond:
Entree, bedrijfsruimte, toiletruimte met toilet, urinoir en wastafel.

Verdieping:
Via vaste trap bereikbaar. Overloop, kantine met keukenblok en separate kantoorruimte.

Voorzieningen & Bijzonderheden
• Krachtstroom aanwezig (3x 25A)
• Handbediende overheaddeur
• Volledig geïsoleerd
• Glasvezelaansluiting
• Remeha combiketel (verwarming)
• Radiatoren in kantoor en kantine
• Gasheater in bedrijfsruimte (momenteel niet in gebruik)
• Airconditioning aanwezig (momenteel niet in gebruik)
• Mechanische ventilatie/afzuiging
• Aansluitingen voor gas, water en elektra

Kadastrale gegevens
• Adres: Verlengde Gildenweg 16-c, 8304 BK Emmeloord
• Gemeente: Noordoostpolder
• Sectie: A
• Nummer: 2315 (bedrijfsunit), groot 55 m²
• Mandelig terrein: 1/16e onverdeeld aandeel in perceel A 2329, groot 1.684 m²

Bestemming
De bedrijfsunit valt binnen het bestemmingsplan Bedrijventerrein Nagelerweg – A6. Bestemming: bedrijventerrein – bedrijvenpark, met bedrijvigheid toegestaan in milieucategorieën 1, 2, 3.1 en 3.2 (conform bijlage 1 van de Staat van Bedrijfsactiviteiten).

Beheer vereniging
De unit maakt deel uit van een beheer vereniging.
Bijdrage: ca. € 200,- per jaar.
De opstalverzekering dient de eigenaar zelf te regelen.

Oplevering
In overleg met eigenaar.

Voorbehoud
Transactie onder voorbehoud van goedkeuring eigenaar.

Vraagprijs
€ 89.500,-- kosten koper

Kaart

Kenmerken

Overdracht

Referentienummer
05872
Vraagprijs
€ 89.500,- k.k.
Status
Verkocht
Aanvaarding
In overleg
Aangeboden sinds
Maandag 28 juli 2025
Laatste wijziging
Dinsdag 23 september 2025

Bouw

Type object
Bedrijfshal
Soort bouw
Bestaande bouw
Bouwperiode
2005

Oppervlaktes en inhoud

Perceeloppervlakte
55 m²
VVO
78 m²
In units vanaf
78 m²
Vrije hoogte
5,4 m.

Uitrusting

Uitrusting
Heater
Overheaddeuren
Pantry
Toilet

Kadastrale gegevens

Kadastrale aanduiding
Noordoostpolder A 2315
Perceeloppervlakte
55 m²

Media

Foto's

Plattegronden

Brochure(s) en overige bijlagen

Verlengde Gildenweg 16-C, 8304 BK EMMELOORD (1) Download