Verkocht onder voorbehoud:Lindenlaan 35, 8302 CV Emmeloord - Foto
Verkocht onder voorbehoud
+45

Lindenlaan 35 8302 CV Emmeloord € 285.000,- k.k.

  • Woonhuis
  • 3 kamers
  • 2 slaapkamers
  • 1 badkamers
  • Bouwjaar 1953
  • 322 m² perceeloppervlakte
  • 79 m² gebruiksoppervlakte
  • C Energielabel C

Beschrijving

Let op: De kijkdagen hebben inmiddels plaatsgevonden. De sluitingsdatum voor het uitbrengen van een bod is woensdag 29 oktober om 13:00 uur.

Vraagprijs € 285.000,- k.k.
LET OP: Vraagprijs is een richtprijs

Hoekwoning met bijkeuken, prachtige tuin en tuinhuis op toplocatie in Emmeloord!
Lindelaan 35, Emmeloord-Centrum

Ben je op zoek naar een goed onderhouden en betaalbare woning op een toplocatie? Dan is deze hoekwoning met bouwjaar 1953 voorzien van een prachtig aangelegde tuin precies wat je zoekt! Gelegen in een rustige straat, maar op loopafstand van het bruisende centrum van Emmeloord, met alle voorzieningen zoals winkels, scholen en sportfaciliteiten binnen handbereik.

De woning beschikt over een doorzonwoonkamer, twee comfortabele slaapkamers en een royale bergzolder. De mogelijkheid bestaat om van 2 weer 3 slaapkamers te maken. De woning heeft 10 zonnepanelen, dak- en gevelisolatie!

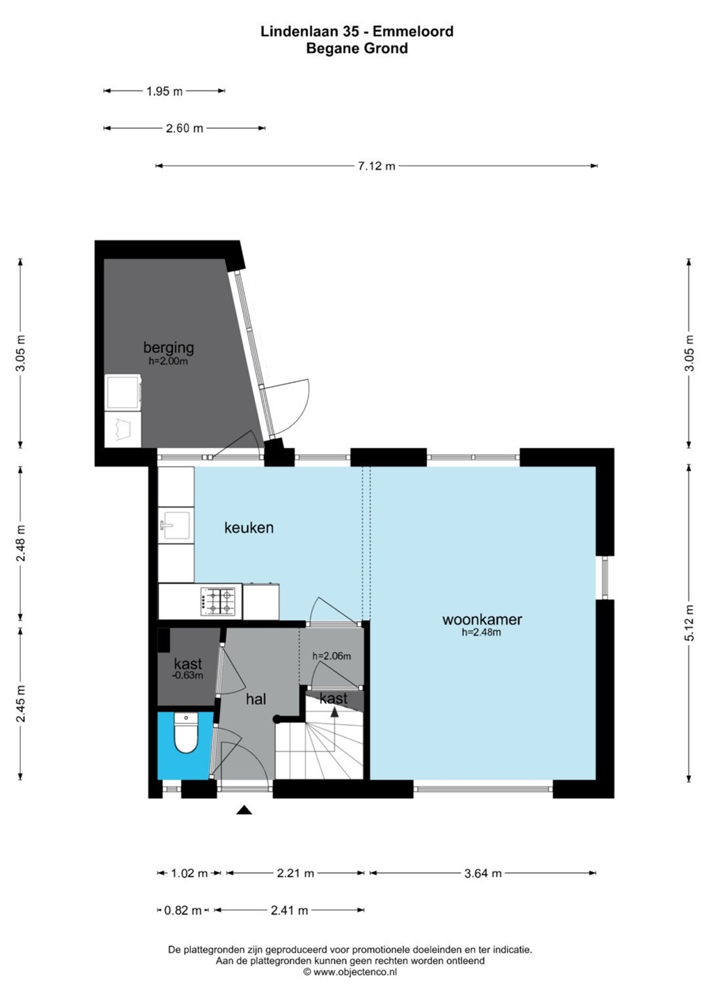
Indeling
Begane grond:
• Entree/hal met trapkast v.v. meterkast, kelderruimte, toilet en trapopgang
• Lichte doorzonwoonkamer met laminaatvloer en een airco unit (2022).
• Open keuken in hoekopstelling welke is voorzien van gaskookplaat, afzuigkap en spoelbak, vaatwasser, combi-oven en natuurstenen aanrechtblad.
• Bijkeuken met witgoedopstelling en deur naar de achtertuin

Eerste verdieping:
• Overloop met toegang tot de royale bergzolder via een steektrap
• Twee slaapkamers met inbouwkasten en laminaatvloer
• Badkamer met wastafel, douche en volledig betegelde ruimte
• Apart toilet, deels betegeld

Zolder:
• Veel bergruimte, omvormer zonnepanelen en CV-ketel (Remeha Avanta 2009)
• Meerdere dakramen zorgen voor extra lichtinval

Buitenruimte
• Ruime en prachtig aangelegde achtertuin (met achterom)
• Veel planten, struiken, gazon en dubbel terras
• Houten tuinhuis
• Elektrisch bedienbaar zonnescherm
• Parkeren op openbare parkeerplaatsen in de straat

Waarom deze woning?
• Hoekwoning met een bijkeuken en volop mogelijkheden
• Rustige straat, maar dichtbij het centrum
• Twee slaapkamers met mogelijkheid voor meer slaapkamers & royale bergzolder
• Houten en aluminium kozijnen met grotendeels dubbele beglazing
• Ruime achtertuin met tuinhuis en achterom
• Energielabel C
• Dakisolatie, gevelisolatie aanwezig
• 10 zonnepanelen, 400 WP per stuk (2022)
• Airconditioning in woonkamer (2022)
• Inhoud 333,53 m³
• Woonoppervlak 79,20 m²
• Overige inpandige ruimte: 12,90 m²
• Externe bergruimte: 5,00 m²
• Perceel grond 322 m2

Emmeloord
Emmeloord fungeert als “Polderhoofdstad” van de Noordoostpolder en heeft daardoor een zeer uitgebreid voorzieningenaanbod. U vindt hier alle denkbare middelbare scholen, een uitgebreid winkelaanbod, bioscoop, theater, medische voorzieningen, diverse horeca-gelegenheden, sportfaciliteiten en kerken.
Voor de ontspanning maakt u een wandeling in het Emmelerbos of gaat u iets verder weg naar het Werelderfgoed Schokland, natuurpark Netl, golfclub Emmeloord of recreatiegebied Wellerwaard.
Emmeloord-West is gunstig gelegen nabij de A6 en N50. Amsterdam, Utrecht, Leeuwarden en Groningen zijn binnen een uur met de auto bereikbaar. Zwolle, Kampen en Lelystad binnen een half uur. In het centrum is een busstation met lijndiensten in alle richtingen.

Interesse? Plan snel een bezichtiging en ontdek de mogelijkheden van deze woning!

Kaart

Kenmerken

Overdracht

Referentienummer
05848
Vraagprijs
€ 285.000,- k.k.
Status
Verkocht onder voorbehoud
Aanvaarding
In overleg
Aangeboden sinds
Donderdag 9 oktober 2025
Laatste wijziging
Dinsdag 11 november 2025

Bouw

Type object
Woonhuis, eengezinswoning, hoekwoning
Soort bouw
Bestaande bouw
Bouwperiode
1953
Isolatievormen
Dakisolatie

Oppervlaktes en inhoud

Perceeloppervlakte
322 m²
Woonoppervlakte
79,2 m²
Inhoud
334 m³
Oppervlakte overige inpandige ruimten
12,9 m²
Oppervlakte externe bergruimte
5 m²

Indeling

Aantal bouwlagen
3 (en 1 kelder)
Aantal kamers
3 (waarvan 2 slaapkamers)
Aantal badkamers
1 (en 2 aparte toiletten)

Energieverbruik

Energielabel
C

CV ketel

Bouwjaar
2009

Uitrusting

Warm water
CV-ketel
Verwarmingssysteem
Centrale verwarming
Badkamervoorzieningen
Douche
Wastafel
Heeft airco
Ja
Heeft zonnepanelen
Ja

Kadastrale gegevens

Kadastrale aanduiding
Noordoostpolder AZ 11506
Perceeloppervlakte
322 m²
Omvang
Geheel perceel
Eigendomsituatie
Eigen grond

Brochure(s) en overige bijlagen

Lindenlaan 35, 8302 CV EMMELOORD (1) Download