Onder bod:Gentiaan 17, 8316 NZ Marknesse - Foto
Onder bod
+43

Gentiaan 17 8316 NZ Marknesse € 489.500,- k.k.

  • Woonhuis
  • 4 kamers
  • 3 slaapkamers
  • 1 badkamers
  • Bouwjaar 2018
  • 351 m² perceeloppervlakte
  • 163 m² gebruiksoppervlakte
  • A Energielabel A

Beschrijving

Richtprijs € 489.500 k.k.
Let op: de vraagprijs is een richtprijs
Op zoek naar een instapklare, luxe afgewerkte woning op een schitterende locatie aan het water? Dan is Gentiaan 17 in Marknesse precies wat u zoekt! Deze ruime twee-onder-een-kapwoning uit 2018 staat op een royaal perceel van 351 m² eigen grond en biedt alles om direct zorgeloos te kunnen genieten.

Waarom deze woning uw aandacht verdient
• Achtertuin direct grenzend aan het water
• Overkapping aan de woning met lichtkoepels
• Riante eigen oprit
• Kunststof kozijnen met HR+++ glas
• Luxe woonkeuken en luxe badkamer en toilet
• Compleet afgewerkte bijkeuken met kastenwand
• 4 slaapkamers
• 6 zonnepanelen
• Energielabel A
• Vloerverwarming op de gehele begane grond
• Houtlook plavuizen
• Onderhoudsarme woning
• Instapklaar & uitstekend onderhouden

Ligging
Marknesse is een levendig en goed bereikbaar dorp met diverse busverbindingen richting Emmeloord, Zwartsluis, Vollenhove en Steenwijk. Alle dagelijkse voorzieningen zijn binnen handbereik: basisscholen, een royale Jumbo supermarkt, bakker, keurslager, horeca, kapsalons en een gezondheidscentrum. Ook zijn er diverse sportfaciliteiten en een verzorgingshuis aanwezig.

Natuur- en watersportliefhebbers zitten hier perfect: het sfeervolle Vollenhove en het historische Blokzijl liggen op korte afstand. Emmeloord (met middelbare scholen, theater en winkelcentrum) is slechts 8 km rijden. De ligging nabij de A6 zorgt voor een snelle verbinding naar Utrecht en Amsterdam (circa 60 minuten).

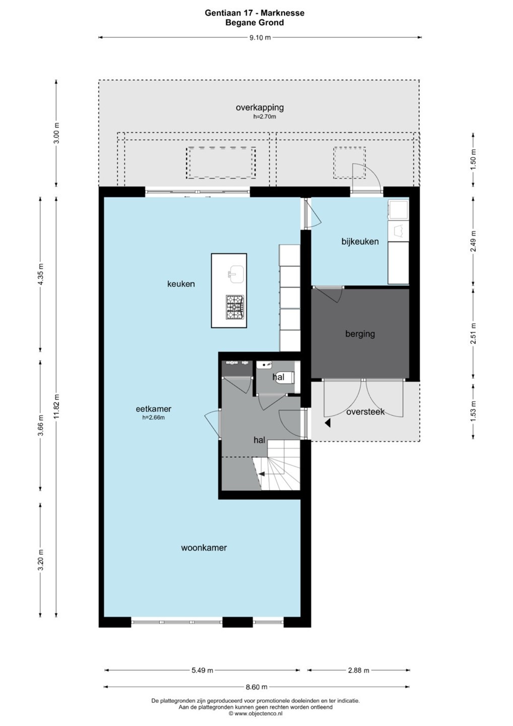
Indeling van de woning
Begane grond
Entree met hal, luxe toilet met fontein, trapopgang en meterkast. De lichte zitkamer aan de voorzijde beschikt over een sfeervolle houtkachel. De woning is aan de achterzijde uitgebouwd en biedt een royale woonkeuken met schuifpui naar het overdekte terras en extra raampartijen voor veel daglicht.
De luxe woonkeuken is uitgevoerd met een kastenwand en kookeiland voorzien van composieten blad en zitgelegenheid. Tevens voorzien van:
• Inductiekookplaat met downdraft afzuiging
• Vaatwasser
• Quooker-kraan
• Grote koelkast
• Stoomoven met daaronder een warmhoudlade
• Koffiezetapparaat
• Combimagnetron met daaronder een warmhoudlade
De bijkeuken is bereikbaar vanuit de keuken en beschikt over een tuindeur, kastenwand met ingebouwde diepvries, veel bergruimte en opstelling voor witgoed. Vanuit hier is ook de berging aan de voorzijde bereikbaar, voorzien van houten openslaande deuren.

Eerste verdieping
Overloop, drie slaapkamers, waaronder de ouderslaapkamer met inloopkast en airco. De luxe badkamer is compleet uitgerust met:
• Inloopdouche met sunshower
• Whirlpool
• Badmeubel met dubbele waskommen
• Hangend toilet
• Designradiator
• Vloerverwarming
• Stijlvolle zwarte kranen en diverse nissen

Tweede verdieping
Via vaste trap bereikbaar. Grote open ruimte met mogelijkheden voor extra slaapkamer, kantoor of hobbyruimte. Onder de knieschotten bevindt zich veel bergruimte, evenals de opstelling van de CV-combiketel (Atag) en ventilatiewarmtepomp (Inventum). Deze voorziet de woning van verse lucht en wint warmte terug uit de ventilatielucht.

Bijzonderheden
• Perceeloppervlak: 351 m² eigen grond
• Bouwjaar: 2019
• Woonoppervlakte: 162,50 m²
• Overige inpandige ruimte: 7,50 m²
• Gebouwgebonden buitenruimte: 27,20 m²
• Inhoud: 611,57 m³
• Luxe woonkeuken met kookeiland
• Complete luxe badkamer
• Overkapping aanwezig
• Tuin grenzend aan het water
• 6 zonnepanelen
• Energielabel A

Deze woning biedt de perfecte mix van comfort, luxe en duurzaamheid. Op zoek naar uw droomhuis? Maak snel een afspraak voor een bezichtiging en ervaar het zelf!

Kaart

Kenmerken

Overdracht

Referentienummer
05903
Vraagprijs
€ 489.500,- k.k.
Status
Onder bod
Aanvaarding
In overleg
Aangeboden sinds
Donderdag 18 december 2025
Laatste wijziging
Donderdag 15 januari 2026

Bouw

Type object
Woonhuis, eengezinswoning, twee onder een kap woning
Soort bouw
Bestaande bouw
Bouwperiode
2018

Oppervlaktes en inhoud

Perceeloppervlakte
351 m²
Woonoppervlakte
162,5 m²
Inhoud
612 m³
Oppervlakte overige inpandige ruimten
7,5 m²
Oppervlakte gebouwgebonden buitenruimte
27,2 m²

Indeling

Aantal bouwlagen
3
Aantal kamers
4 (waarvan 3 slaapkamers)
Aantal badkamers
1 (en 1 apart toilet)

Energieverbruik

Energielabel
A

Uitrusting

Keukenvoorzieningen
Inbouwapparatuur
Badkamervoorzieningen
Dubbele wastafel
Inloopdouche
Toilet
Vloerverwarming
Whirlpool

Kadastrale gegevens

Kadastrale aanduiding
Noordoostpolder B 4025
Perceeloppervlakte
351 m²
Omvang
Geheel perceel
Eigendomsituatie
Eigen grond

Brochure(s) en overige bijlagen

Gentiaan 17, 8316 NZ MARKNESSE (1) Download